Marseille 1 - Appartement - 3 pièces

VIEUX-PORT

479 000 €  |  Ref : 13921

Infos

Type de bien
Appartement
Prix
479 000 €   (3 742 €/m2)
Honoraires charge vendeur
Surface habitable
128 m²
Surface Carrez
110 m²
Nombre de pièces
3
Chambres
2
Salle(s) de bain
1
Salle(s) d'eau
1
Nombre de niveaux
1
Étage
5ème sur 5
Ascenseur
Oui
Balcon
5 m²
Bien en copropriété
Oui
Procédures
Pas de procédure en cours
Charges de copropriété
3 360 € / an   (280 € / mois)
Taxe foncière
2 233 €
Année de construction
1880
Soumis à l'affichage du DPE
Oui
Performance énergétique
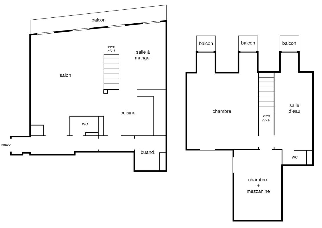
Plan

Description

Ce superbe espace T3 en duplex de 110 m² Carrez se trouve au 5ᵉ et dernier étage d’un immeuble haussmannien classé des années 1880, récemment rénové. Ce bien rare conjugue avec élégance le charme de l’ancien et le confort contemporain. Dès l’entrée, vous serez séduit par la spacieuse pièce de vie lumineuse, composée d’un salon, d’un espace salle à manger et d’une cuisine ouverte entièrement équipée, donnant accès à un balcon offrant une vue dégagée sur les toits marseillais. À l’étage, l’espace nuit se compose de deux grandes chambres, d’une vaste salle d’eau moderne et d’une buanderie fonctionnelle. L’appartement séduit par ses prestations de qualité et son ambiance chaleureuse, au cœur d’un immeuble plein de caractère. Idéalement situé, le bien bénéficie d’un emplacement privilégié à deux pas du Vieux-Port,

Les informations sur les risques auxquels ce bien est exposé sont disponibles sur le site Géorisques.