Tarascon - Immeuble - 30 pièces

RIVES DU RHÔNE

749 000 €  |  Ref : 13904

Infos

Type de bien
Immeuble
Prix
749 000 €   (1 305 €/m2)
Honoraires charge vendeur
Surface habitable
574 m²
Nombre de pièces
30
Chambres
19
Salle(s) d'eau
4
Nombre de niveaux
4
Étage
3ème sur 3
Ascenseur
Non
Terrasse
95 m²
Bien en copropriété
Non
Taxe foncière
5 230 €
Soumis à l'affichage du DPE
Oui
Performance énergétique
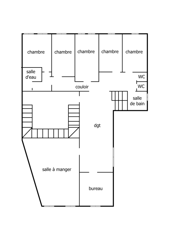
Plans

Description

Situé sur la place récemment rénovée de la Concorde à Tarascon, cet ancien hôtel particulier séduit par son élégance intemporelle et son caractère historique. Son architecture provençale met en valeur des volumes généreux et une hauteur sous plafond remarquable, offrant de nombreuses perspectives d’aménagement. Sur près de 780 m² (au sol) répartis sur quatre niveaux, la bâtisse s’ouvre sur deux vastes terrasses, dont l’une de 68 m², offrant une vue saisissante de la chaîne des Alpilles. De larges ouvertures encadrent des panoramas uniques sur le château de Tarascon et l’église Sainte-Marthe, dans une cité au charme médiéval préservé. Des caves voûtées en pierre et un grand parking gratuit à proximité complètent l’ensemble. Ce bâtiment au potentiel certain s’inscrit dans un cadre précieux et constitue une opportunité singulière pour un projet de grande envergure.

Les informations sur les risques auxquels ce bien est exposé sont disponibles sur le site Géorisques.