Marseille 5 - Vendu

CAMAS

429 000 €  |  Ref : 14107

Infos

Type de bien
Appartement
Prix
429 000 €   (4 423 €/m2)
Honoraires charge vendeur
Surface habitable
97 m²
Surface Carrez
86 m²
Nombre de pièces
4
Chambres
3
Salle(s) de bain
1
Nombre de niveaux
1
Étage
2ème sur 8
Ascenseur
Non
Balcon
9 m²
Bien en copropriété
Oui   (20 lots)
Nombre de lots d'habitation
16 lots
Procédures
Pas de procédure en cours
Charges de copropriété
2 232 € / an   (186 € / mois)
Taxe foncière
1 900 €
Meublé
Oui
Soumis à l'affichage du DPE
Oui
Performance énergétique
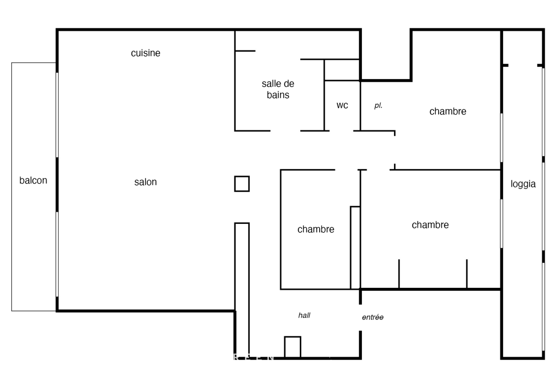
Plan

Description

C’est à deux pas de la place Sébastopol, au cœur d’un quartier vivant et recherché, que se situe cet appartement de 86 m² Carrez, niché au 2ᵉ étage avec ascenseur d’une résidence semi-récente, très bien entretenue. Dès l’entrée, l’appartement séduit par ses volumes et sa luminosité. La pièce de vie, généreuse et parfaitement agencée, développe près de 35 m² et s’ouvre sur un agréable balcon de 9 m², idéal pour profiter d’une exposition plein sud. La cuisine, moderne et fonctionnelle, s’intègre harmonieusement à l’espace de vie. La partie nuit offre deux véritables chambres confortables, une salle de bain composé d'une douche et d'une baignoire ainsi qu’une troisième pièce pouvant faire office de bureau, dressing ou chambre d’appoint selon les besoins. Une loggia de 11 m² complète l’ensemble, apportant un espace extérieur supplémentaire. Entièrement rénové avec goût, l’appartement bénéficie de prestations soignées, d’un plan optimisé et d’une atmosphère chaleureuse, alliant confort moderne et qualité de vie. Une cave de 9 m² complète cette description.

Les informations sur les risques auxquels ce bien est exposé sont disponibles sur le site Géorisques.