Marseille 8 - Appartement - 3 pièces

LES GOUDES

449 000 €  |  Ref : 13932

Infos

Type de bien
Appartement
Prix
449 000 €   (6 908 €/m2)
Honoraires charge vendeur
Surface habitable
65 m²
Surface Carrez
45 m²
Nombre de pièces
3
Chambres
1
Salle(s) d'eau
1
Nombre de niveaux
1
Ascenseur
Non
Cour
26 m²
Piscine
Oui
Bien en copropriété
Oui   (4 lots)
Nombre de lots d'habitation
4 lots
Procédures
Pas de procédure en cours
Charges de copropriété
960 € / an   (80 € / mois)
Taxe foncière
896 €
Soumis à l'affichage du DPE
Oui
Dépenses annuelles d'énergie
(montant estimé pour un usage standard)
Entre 560 € et 810 €
Performance énergétique
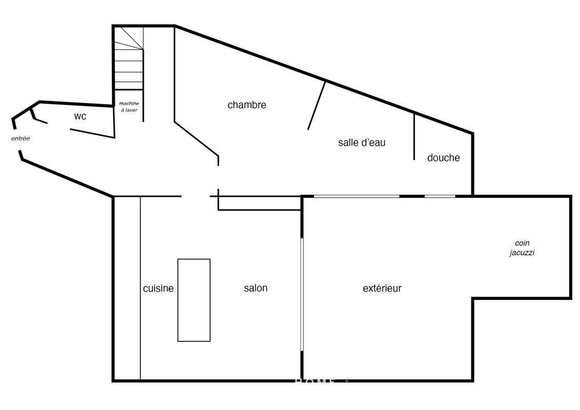
Plans

Description

Dans le secteur prisé des Goudes, se dévoile une propriété au caractère singulier, entièrement repensée et rénovée avec raffinement par un architecte. À l’abri des regards, au cœur d’un environnement serein, elle offre un calme irréprochable et une intimité préservée. Le séjour ainsi que la suite parentale s’ouvrent sur une cour intérieure, véritable écrin de quiétude sublimé par un bassin. Les espaces, mariant avec élégance authenticité et touches contemporaines, présentent des prestations de qualité. Le bien profite d'une grande mezzanine illuminer par une fenêtre de toit. Un lieu d’exception, alliant charme, tranquillité et discrétion, à quelques pas seulement du littoral.

Les informations sur les risques auxquels ce bien est exposé sont disponibles sur le site Géorisques.