Marseille 7 - Appartement - 3 pièces

Saint Lambert

299 000 €  |  Ref : 13943

Infos

Type de bien
Appartement
Prix
299 000 €   (4 600 €/m2)
Honoraires charge vendeur
Surface habitable
65 m²
Surface Carrez
65 m²
Nombre de pièces
3
Chambres
2
Salle(s) d'eau
1
Étage
4ème sur 7
Ascenseur
Oui
Balcon
14 m²
Bien en copropriété
Oui
Procédures
Pas de procédure en cours
Charges de copropriété
1 601 € / an   (133 € / mois)
Taxe foncière
1 512 €
Année de construction
1978
Soumis à l'affichage du DPE
Non
Performance énergétique
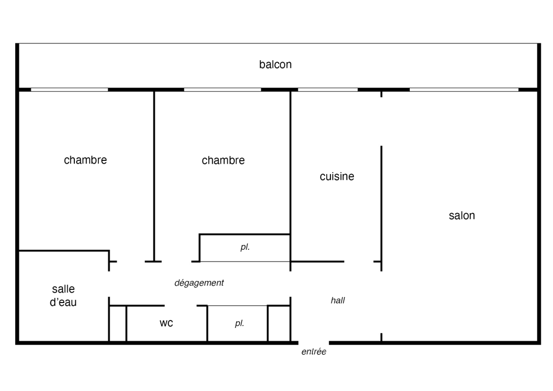
Plan

Description

Idéalement situé dans le très recherché 7e arrondissement de Marseille, à proximité immédiate de la Rampe Sainte Maurice, cet appartement lumineux de 65 m² séduit par son emplacement et son potentiel. Parfaitement agencé, il se compose de deux chambres confortables et d'un bel espace de vie. Le véritable atout de ce bien est son grand balcon de 14 m² exposé Est, offrant un espace extérieur parfait pour profiter du soleil dès le matin. Les chambres ainsi que la pièce à vivre donnent sur l'extérieur. Une cave complète ce bien.

Les informations sur les risques auxquels ce bien est exposé sont disponibles sur le site Géorisques.