Marseille 8 - Maison - 4 pièces

MONTREDON

649 000 €  |  Ref : 14141

Infos

Type de bien
Maison
Prix
649 000 €   (6 065 €/m2)
Honoraires charge vendeur
Surface habitable
107 m²
Surface Carrez
87 m²
Nombre de pièces
4
Chambres
3
Salle(s) de bain
1
Salle(s) d'eau
2
Nombre de niveaux
1
Ascenseur
Non
Cour
33 m²
Bien en copropriété
Non
Taxe foncière
1 119 €
Soumis à l'affichage du DPE
Oui
Dépenses annuelles d'énergie
(montant estimé pour un usage standard)
Entre 730 € et 1 040 €
Performance énergétique
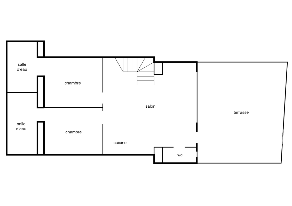
Plans

Description

Dans le secteur très recherché de Montredon, à deux pas de la mer, cette maison de plage entièrement rénovée offre un cadre de vie rare, alliant confort, élégance et tranquillité. Les volumes généreux, la luminosité exceptionnelle et les prestations soignées soulignent le caractère de ce bien. La salon parqueté, avec sa cuisine ouverte, s'ouvre par une grande baie vitrée sur la terrasse offrant un parfait dedans dehors pour profiter pleinement de l'extérieur. La terrasse est munie d'une douche pour se désaler en rentrant de la plage. La maison dispose de deux suites au rez de chaussée, chacune avec sa salle d’eau privative et d'une master, à l'étage sous les toits, l'ensemble répondant parfaitement aux attentes d’une résidence principale, secondaire ou d’un investissement locatif de qualité. Implantée dans une impasse au calme absolu, cette propriété bénéficie d’un emplacement aussi paisible que recherché.

Les informations sur les risques auxquels ce bien est exposé sont disponibles sur le site Géorisques.