Marseille 5 - Appartement - 6 pièces

BAILLE

625 000 €  |  Ref : 14326

Infos

Type de bien
Appartement
Prix
625 000 €   (2 880 €/m2)
Honoraires charge vendeur
Surface habitable
217 m²
Surface Carrez
196 m²
Nombre de pièces
6
Chambres
5
Salle(s) d'eau
2
Nombre de niveaux
2
Étage
1er sur 1
Ascenseur
Non
Terrasse
50 m²
Bien en copropriété
Oui   (3 lots)
Nombre de lots d'habitation
1 lot
Procédures
Pas de procédure en cours
Charges de copropriété
400 € / an   (33 € / mois)
Taxe foncière
3 500 €
Année de construction
1900
Soumis à l'affichage du DPE
Oui
Dépenses annuelles d'énergie
(montant estimé pour un usage standard)
Entre 2 580 € et 3 530 €
Performance énergétique
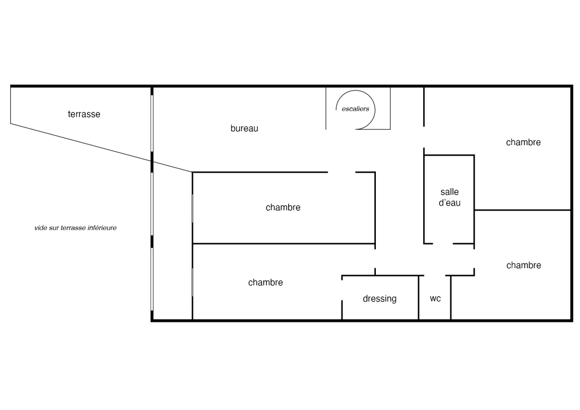
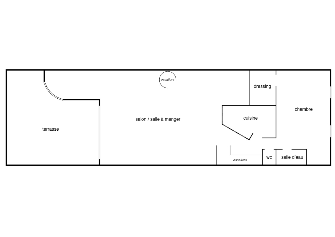
Plans

Description

Ce loft atypique rayonne par son entrée indépendante telle une maison de ville. La premier niveau dessert une suite parentale, puis une pièce de vie étendue idéale pour les réceptions familiales. Entourée de baies où la luminosité y est constante, la vie se prolonge à l'ouest vers la terrasse. Lieu unique, les volumes nous mènent vers l'étage, composé de quatre chambres, salle de bain et une seconde terrasse. Calme, cachet et position centrale pour une vie citadine sont les forces de ce lieu. En solution de stationnement, un garage fermé dans une copropriété voisine est proposé en sus. DPE : D Copropriété de 3 lots (Pas de procédure en cours) Charges annuelles : 600€

Les informations sur les risques auxquels ce bien est exposé sont disponibles sur le site Géorisques.